芝公園アビタシオン
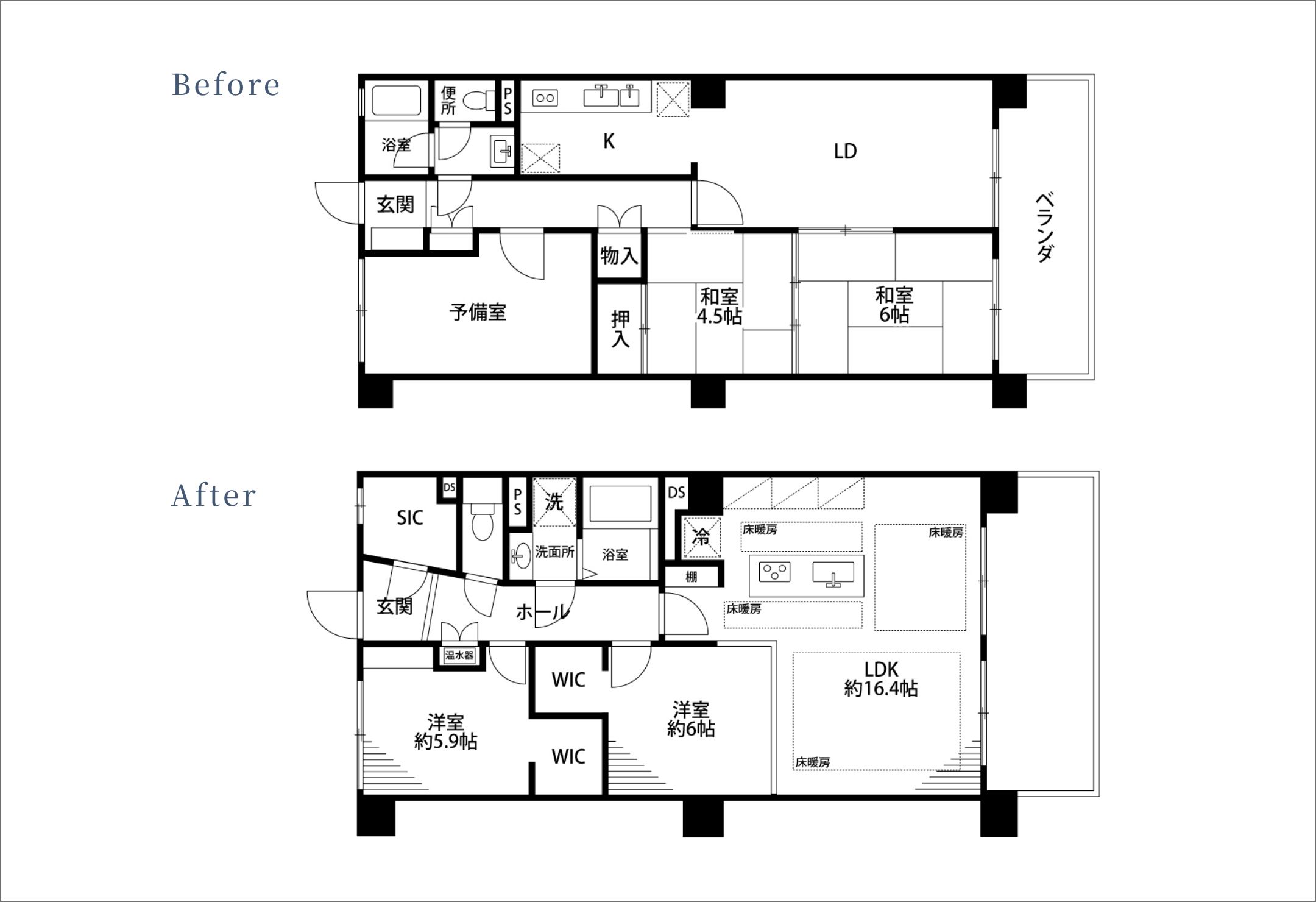
Room plan間取り

素材に酔いしれる、大人の隠れ家
躯体の梁をあえて「見せる意匠」として活かした、唯一無二のデザイン空間。
壁一面には風合い豊かな古レンガを贅沢に配し、無機質な中に温かみを添えています。
LDKと居室の間にはガラスをはめ込み、視覚的な広がりを生み出すことで、空間全体に開放感をもたらしました。
キッチンは、プロ仕様のようなステンレス製アイランドキッチン。上部の間接照明が鈍い光沢を際立たせ、料理をする時間すら格上げします。
素材一つひとつにこだわったこの部屋は、あなたの感性と響き合い、日常を特別なものに変えてくれるでしょう。
本物の価値がわかる方にふさわしい住まいです。
Contactお問い合わせ
リノベーションについて知りたい、
相談したいなどお気軽にお問い合わせください。






















