品川区上大崎3丁目新築戸建
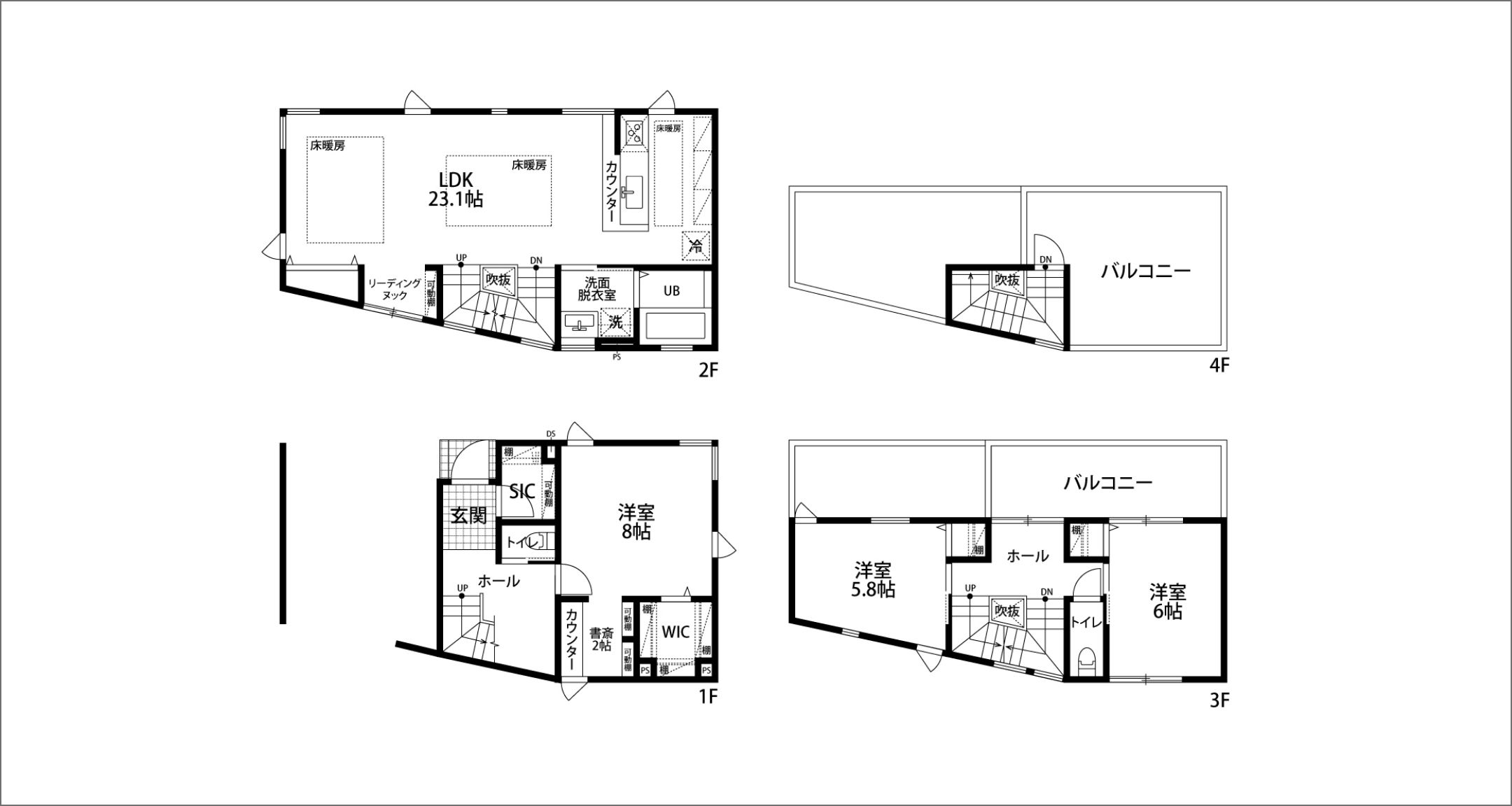
Room plan間取り

最先端な高級シンプルモダン
ビルトインガレージの上部には、弊社の建売ならではの独自デザインによる間接照明を配置。スタイリッシュな印象とともに、暮らしの質を高める空間づくりが施されています。
LDKには最新トレンドの「リーディングヌック」を取り入れ、快適なおうち時間を過ごせる工夫を。キッチンはタイル張りのカウンター裏に間接照明を組み込み、高級感あふれるバーのような雰囲気を演出。日常を特別なひとときに変えてくれる空間が広がります。
バスルームにはTOTOの高級ユニットバス「シンラ」を採用。浴室内の間接照明と、肩掛け湯が流れ出る仕様により、贅沢で心地よいリラックスタイムを実現します。
3階と屋上には大空間のルーフバルコニーを設け、パラペット部分にも間接照明を配置。ライトアップされた夜はヨーロッパのカフェテラスのような雰囲気に包まれます。全バルコニーには金属防水を採用し、永年メンテナンス不要かつ高い耐熱性を備えているため、屋上ではBBQや子供用プールなど、都心にいながら快適なアウトドア空間を楽しめます。
Contactお問い合わせ
リノベーションについて知りたい、
相談したいなどお気軽にお問い合わせください。






















