浜田山4丁目新築戸建
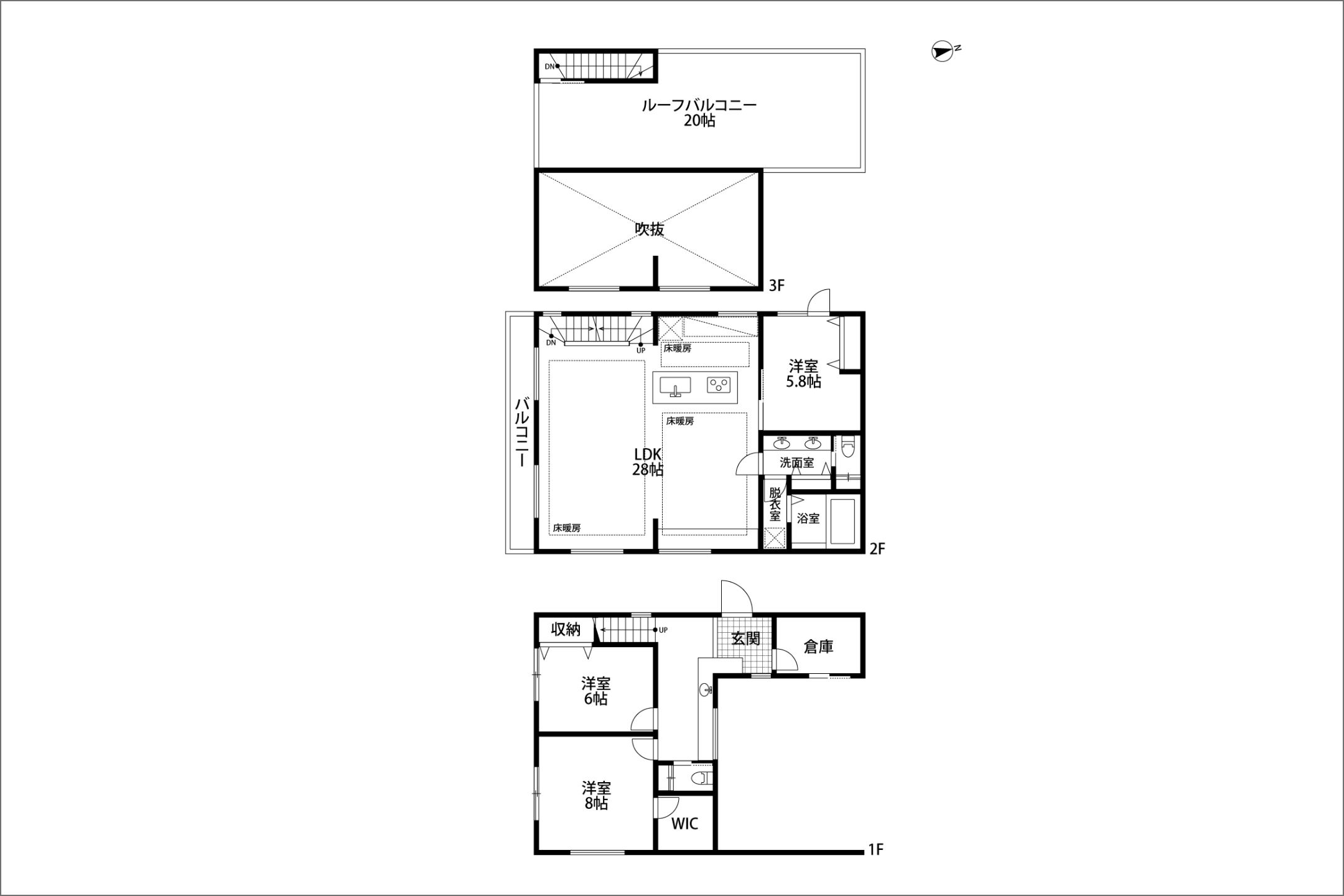
Room plan間取り

吹き抜けに包まれる、静かで贅沢な日常
外観は、車庫奥にあしらわれた上質なタイルと木目調の天井が温かみを添え、埋め込み式LED照明や足元のスポットライトが昼夜で異なる表情を演出。草木の美しさを際立たせるこだわりのデザインです。
玄関は間接照明が足元をやさしく照らし、グレーのタイルが上品に広がる洗練空間。ガレージへと続く動線は機能性とデザイン性を兼ね備え、さらにポールハンガーを備えることで実用性も高めています。
リビングは高窓から柔らかな自然光を取り込み、外からの視線を遮りながら開放感を実現。アクセントタイルと間接照明が洗練された雰囲気を演出し、シーリングファンやカウンターのコンセントなど、快適な暮らしを支える工夫も随所に。約3.6mの吹き抜けが広がりをもたらし、光と風に包まれる心地よい大空間です。
キッチンは木格子のルーバー天井が重厚感とぬくもりを感じさせ、集いの中心となるアイランド型を採用。料理や会話、配膳までスムーズに行える家事動線で、ストレスフリーな毎日を叶えます。大容量食洗機も備え、機能美と快適性を両立しました。
独立洗面台は2ボウル仕様で、忙しい朝も快適に。深みのある青タイルと間接照明が上質な雰囲気を醸し出し、まるで高級ホテルのような仕上がりに。造作ならではの美しさと機能性を兼ね備えた空間です。
Contactお問い合わせ
リノベーションについて知りたい、
相談したいなどお気軽にお問い合わせください。




















